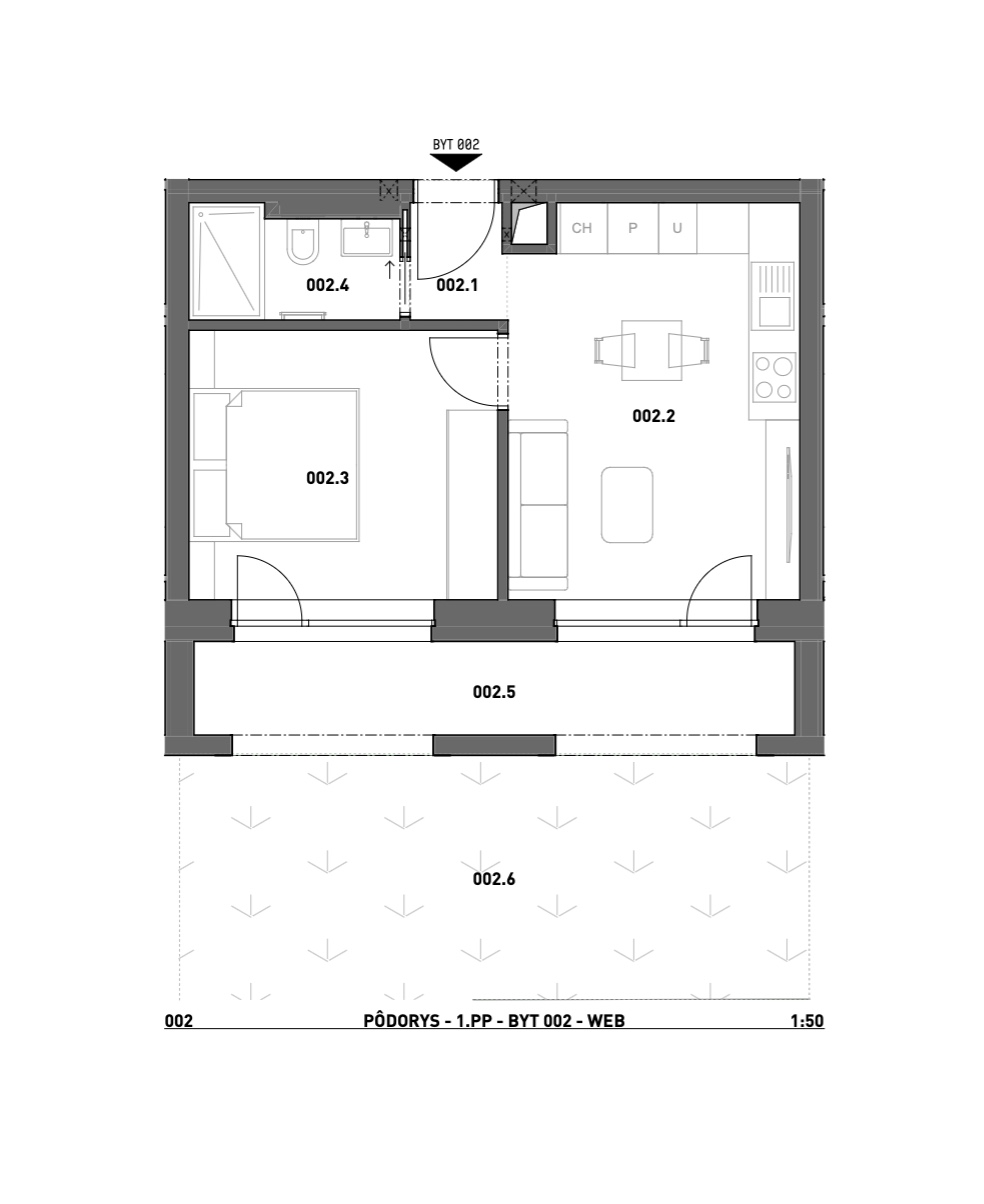
A 002
43.91 m2
- Obývacia izba s kuchyňou
- 16,56 m2
- Chodba
- 1,83 m2
- Kúpelňa
- 3,25 m2
- Izba
- 12,45 m2
- Terasa
- 9,81 m2

Podobné byty
Financovanie
Platby za byt prebiehajú podľa postupu výstavby. Takýto systém je výhodný a transparentný – umožňuje lepšie plánovať rozpočet a zároveň odráža reálny pokrok na stavbe.
1
Rezervácia
Splatná rezervačná záloha vo výške 5 000 €.
2
Zmluva o budúcej kúpnej zmluve
Uzavretie do 21 dní od rezevácie jednotky a splanosť kúpnej ceny vo výške 30%
3
30% hrubá stavba
Po dokončení nosných konštrukcií a strechy nasleduje tretia fáza úhrady.
4
40% dokončenie
Záverečná platba sa realizuje až po ukončení stavebných prác – pred samotným odovzdaním bytu.
Zaujalo vás bývanie na Vínnom vrchu?
Zanechajte nám kontakt – ozveme sa vám s detailmi, ktoré vás budú zaujímať.
Noveba.sk
Výhradný predajca projektu Vínny vrch.
alebo nám pošlite e-mail






